525 S. Virgil Ave, Los Angeles, CA 90020
This is a great investment opportunity in the thriving Wilshire Center/Koreatown area of Los Angeles. This prime property is located at 525 S Virgil Ave, Los Angeles, CA and comprises a 4-story office building built in 1965 with a total of approximately 52,596 square feet of space on a site of approximately 42,399 square feet.
During Spring 2021, the Property underwent a successful entitlement process, resulting in approval for 130 dwelling units, including 19 units reserved for Very Low-Income Households, and 26,632 square feet of commercial/office space. The Property is now primed for development, with the entitlements in place for up to 181 multifamily residential units due to the 70% Transit Oriented Communities (TOC) Program, which provides incentives for developers to include the requisite number of affordable units.
Los Angeles has a growing demand for affordable housing in the city of Los Angeles, and this property is an ideal opportunity for investors to meet this demand while capitalizing on the city’s strong rental market. The Wilshire Center/Koreatown area is highly sought-after, and with the entitlements in place, this property is a rare find in a highly competitive market.
Investors can expect to see significant returns from this investment, as demand for affordable housing in the city continues to rise. With its prime location and the entitlements in place, this property is a once-in-a-lifetime investment opportunity. Contact us today to learn more about this unique opportunity and take advantage of the growing demand for housing in The Wilshire Center/Koreatown.
One of the most significant advantages of this development is its prime location within half a mile of the Wilshire / Vermont Metro Station, providing easy access to public transportation and making it an ideal choice for commuters. As a result, the project was awarded Tier-3 project incentives under the city’s transit-oriented communities program, including a 70-percent increase in density and an 11-foot height increase, further adding to the value of this investment opportunity.
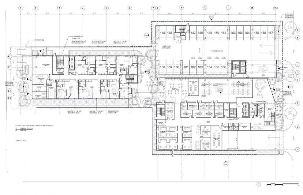
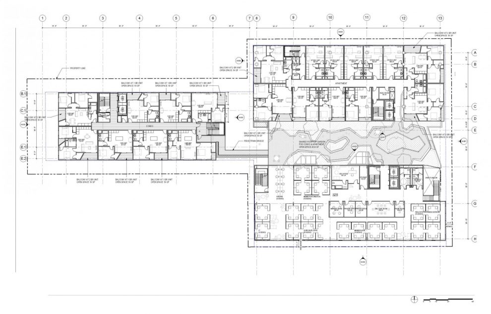
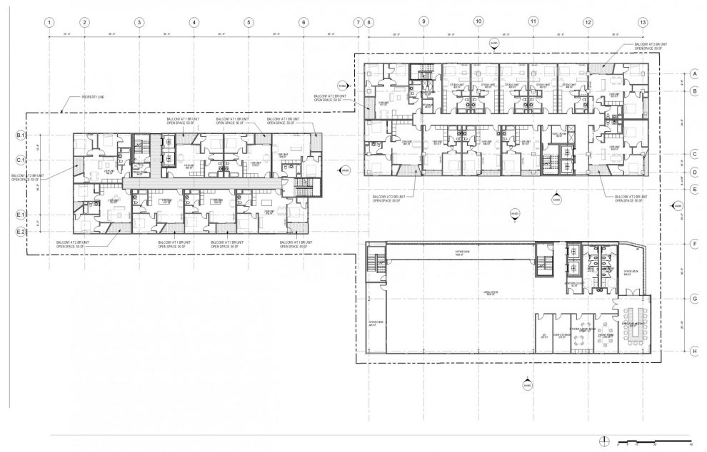
Development Overview
| Entitlement Overview | |
|---|---|
| Total Size SF Proposed |
132,367 SF mixed use development |
| Residential Units | 130 total units (NOTE: entitlement will allow 181 multifamily) 111 market rate units and 19 affordable units |
| Residential Tower |
Two (2) Towers |
| Tower Heights Unit Mix |
One (1) eights-story (86 feet tall) • 35 studio units; 21 one-bedroom; 28 two-bedroom units • 84 total units One (1) six-story (69’ feet tall) • 30 one-bedroom; 16 two-bedroom units • 46 total units |
| Commercial | 27,115 SF |
| Common Area and Private Space |
14,199 SF, which includes 4,000 SF open air courtyard on the podium level, a 4,372 SF rooftop garden at the condominium building, and 50 SF private balconies for every unit. |
| FAR | 3.75 to 1 for CR-1 Zoning 4.50 to 1 for R4P-1 Zoning |
| Parking | 166 parking spaces on parking grade level and two (2) subterranean parking levels |
| Bicycle Parking | Residential Use: 99 long term & 9 short term Commercial Use: 6 long term & 3 short term |





















